6C.1 Typical Communication Rooms
6C.1.1 Typical 8 Cabinet – MAA Telecommunication Room
|
|
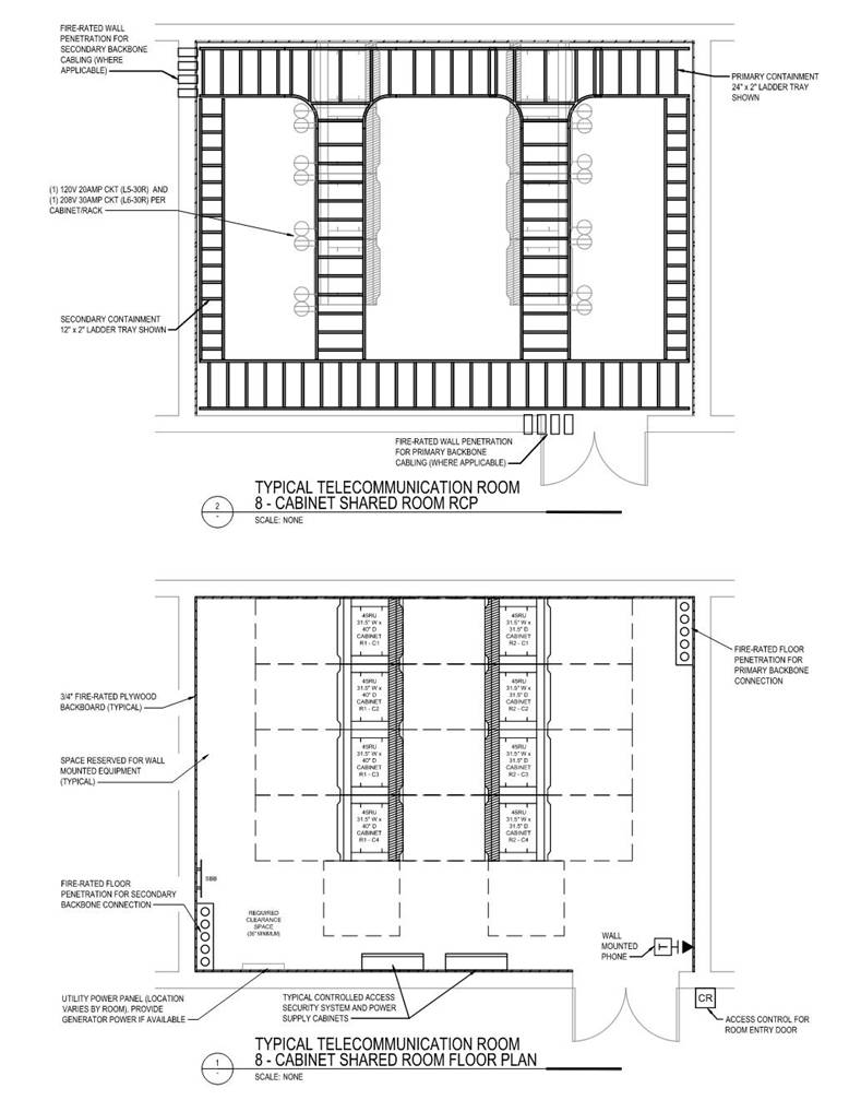
6C.1.2 Typical 8 Cabinet – Shared Telecommunication Room
|
|
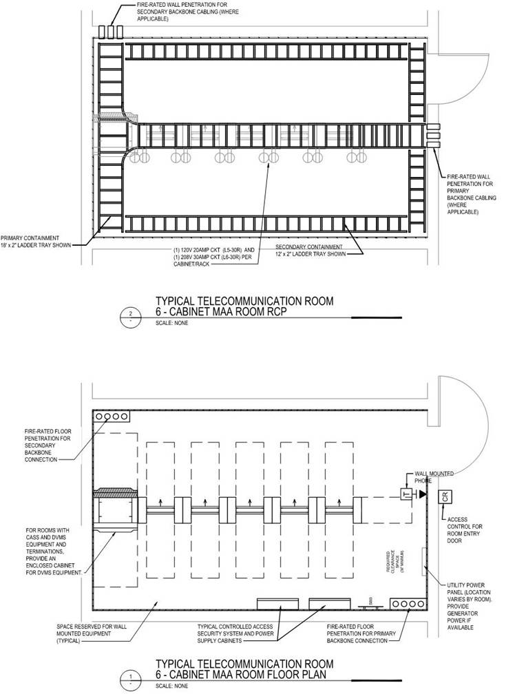
6C.1.3 Typical 6 Cabinet – MAA Telecommunication Room

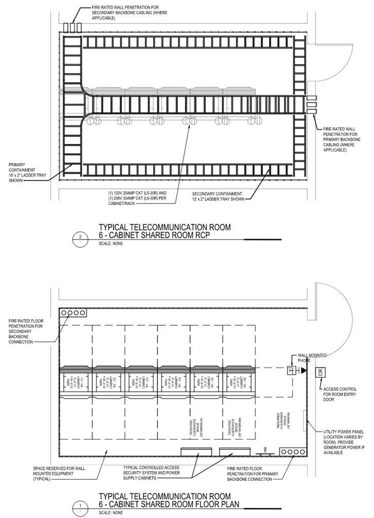
6C.1.4 Typical 6 Cabinet – Shared Telecommunication Room

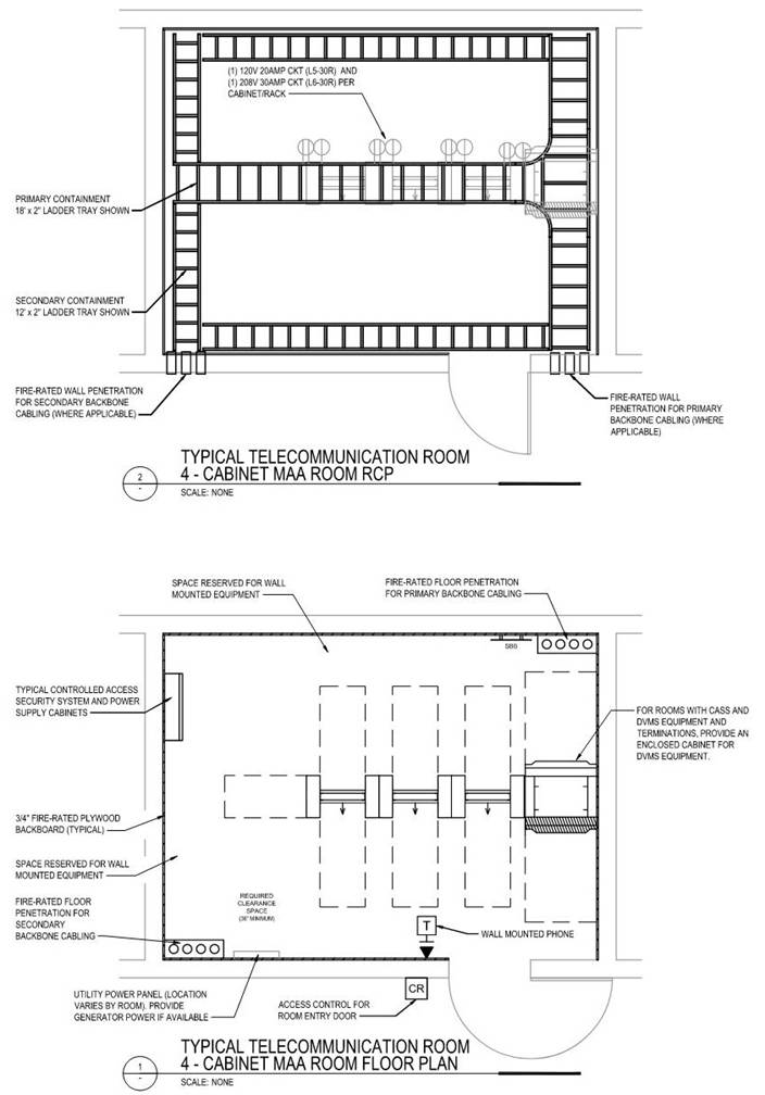
6C.1.5 Typical 4 Cabinet – MAA Telecommunication Room

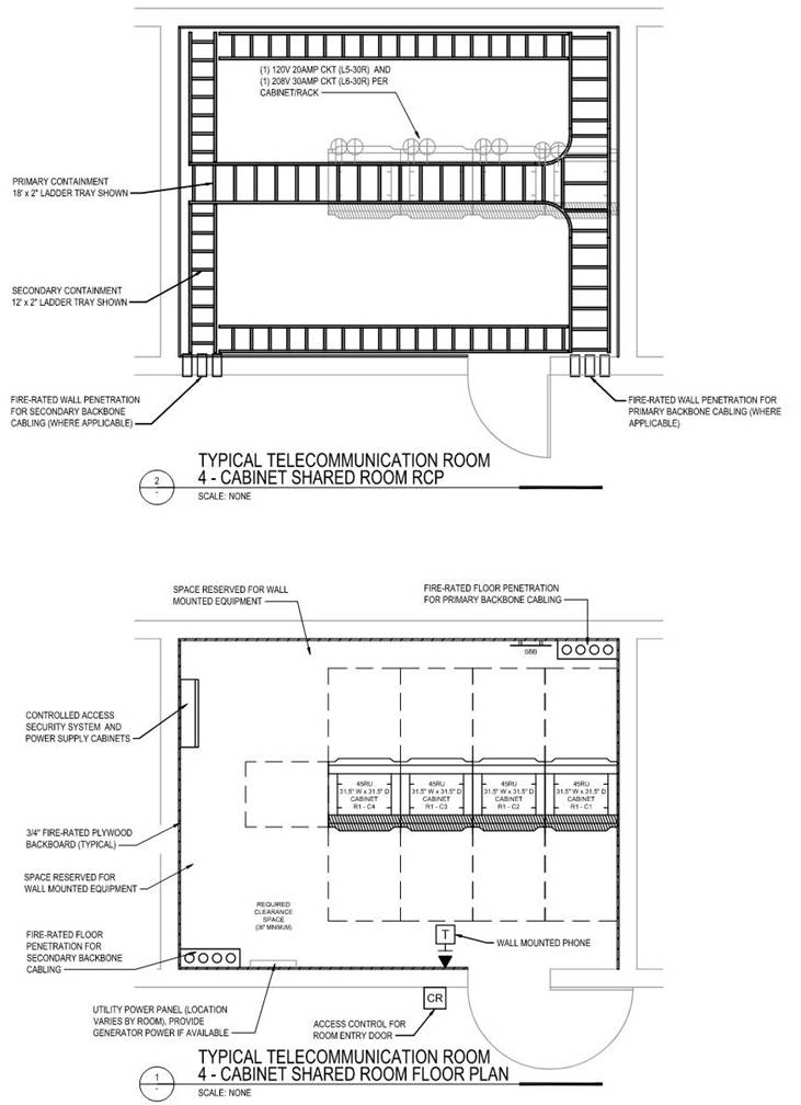
6C.1.6 Typical 4 Cabinet – Shared Telecommunication Room

6C.1.7 Typical 3 Cabinet – MAA Telecommunication Room

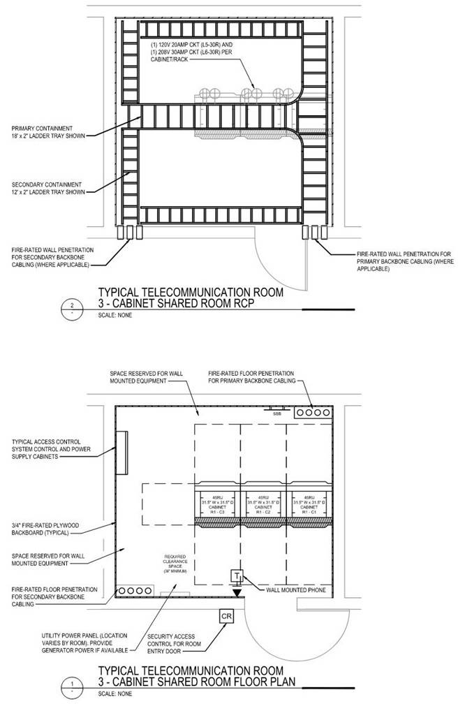
6C.1.8 Typical 3 Cabinet – Shared Telecommunication Room
